Davidsson Tarkela Siren Architects
Client
Punainen risti
Description
Renovation and extension
Size br-m2
5 500
Year
2019

Merikatu 5

Merikatu 5 is a 1920s protected building located on the shoreline in Ullanlinna, Helsinki. Constructed in 1925 by Frosterus & Gripenberg Architects, the building originally provided employment housing for the officer families of the White Guard higher cadre. After the war, the White Guard was abolished and the building was donated to the Finnish Red Cross.

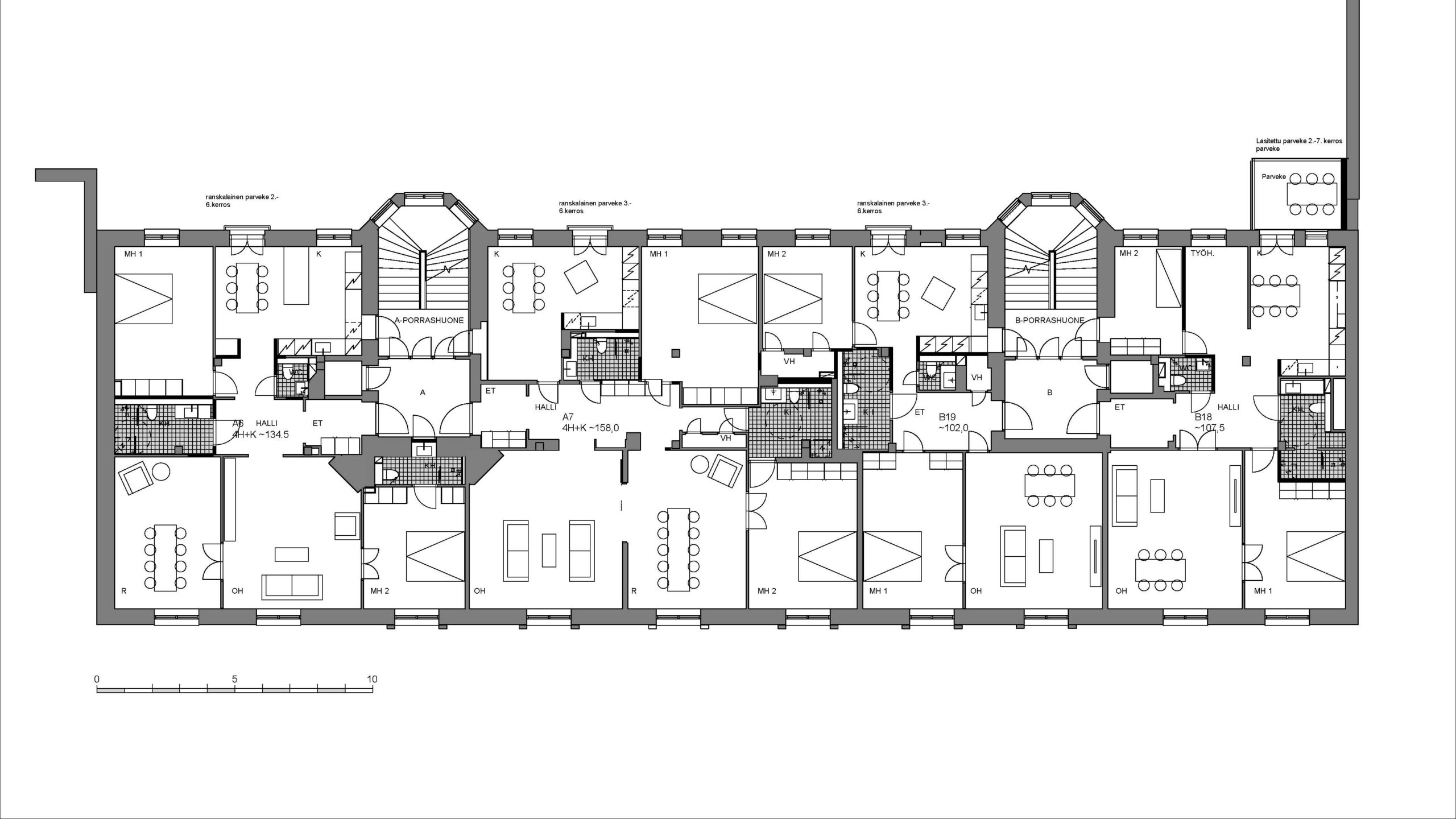
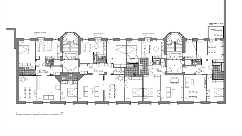
The concept of the plan was to preserve the architectural, cultural and historical values of the building while improving the liveability of the apartments. The existing apartments were renovated and modernized, with particular attention to kitchens and wet spaces. The quality of the living environment was improved with balconies and French balconies. Along the seafront side on the south, the rooms remain in their original arrangement of 2–3 connected spaces, while kitchens and other functional spaces are located alongside the internal courtyard.

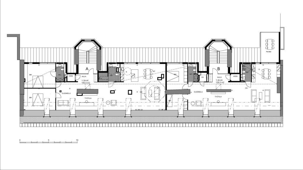
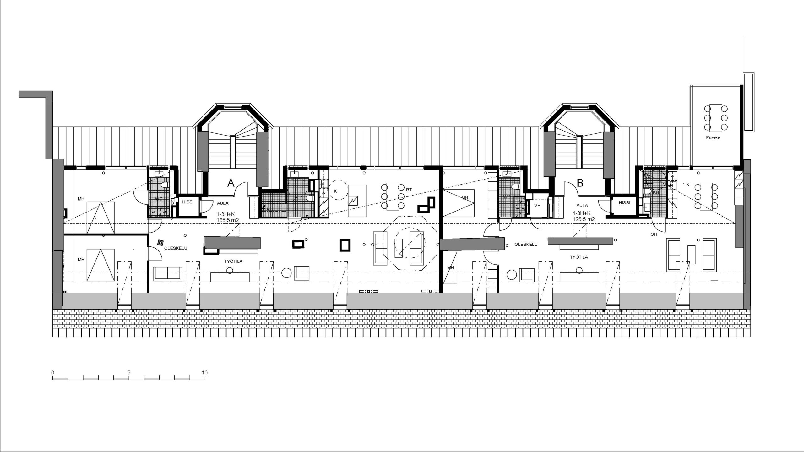
Two new apartments were added to the attic. Each attic apartment has four attic windows with sea views. The elevators and stairwells were modified to access the attic level, and the courtyard roof pitch was revised to allow more light into the apartments. One of the attic apartments incorporates an existing rooftop tower, using a skylight inside the tower to illuminate the living rooms of the apartment below.