Kuopio Museum
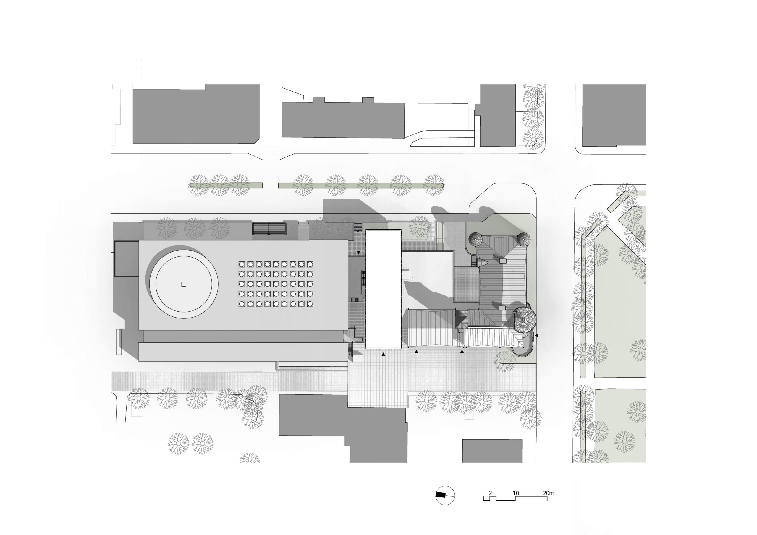
The Kuopio Museum extension is an independent piece of architecture in a historically layered block. Rising between the lavish architecture of the early 20th century and the disciplined, structured architecture of the 1960s, the exhibition building is the focal point of a new cultural quarter. The building’s white, reticulated facades, which hover over the spacious glass entrance floor, create a light architectural impression recognizable from a distance in the cityscape and mark the location of the new main entrance. The interior spaces feature in-situ cast concrete, which is also the material of the load-bearing structures.
The city of Kuopio organized an architectural competition for the renovation and expansion of Kuopio Museum, an Art Nouveau, historically listed building designed by J.V. Strömberg and completed in 1907. The goal of the competition was to connect the old museum building and the library (architect Matti Hakala, 1967), with the help of a new extension. The old, listed museum building was restored to its original character. The extension houses entrance facilities and a new space for changing exhibitions. Special attention has been paid to the fluency of the exhibition activities in accordance with the special characteristics of both buildings. The bright and open new part of the extension connects the museum lobby and the library, thus forming a new cultural entity called Kantti – meaning edge in Finnish.
The city of Kuopio organized an architectural competition for the renovation and expansion of Kuopio Museum, an Art Nouveau, historically listed building designed by J.V. Strömberg and completed in 1907. The goal of the competition was to connect the old museum building and the library (architect Matti Hakala, 1967), with the help of a new extension. The old, listed museum building was restored to its original character. The extension houses entrance facilities and a new space for changing exhibitions. Special attention has been paid to the fluency of the exhibition activities in accordance with the special characteristics of both buildings. The bright and open new part of the extension connects the museum lobby and the library, thus forming a new cultural entity called Kantti – meaning edge in Finnish.
